Cortile

Il cortile esterno fa da ingresso alla Sala Eliche al piano terra. La facciata dell’edificio si distingue per mattoni rossi a vista e inserti in pietra grigia, materiali tipici delle industrie dei primi del Novecento. Due lesene ne esaltano il disegno, preannunciando il colonnato interno e racchiudendo il portone centrale, oltre alla finestra ad ogiva. Elementi architettonici dal carattere unico, che donano eleganza e slancio alla facciata, evidenziandone il maestoso tetto a falda. A completare la suggestione sono state conservate le ampie vetrate in ferro. La scala esterna, quasi fosse una passerella sospesa, permette l'accesso al primo piano direttamente dal cortile. Le fa da sfondo una parete in acciaio corten, in perfetta sintonia con il rosso dei mattoni. L'area è pavimentata con blocchetti in porfido, tutti originali dell’epoca.


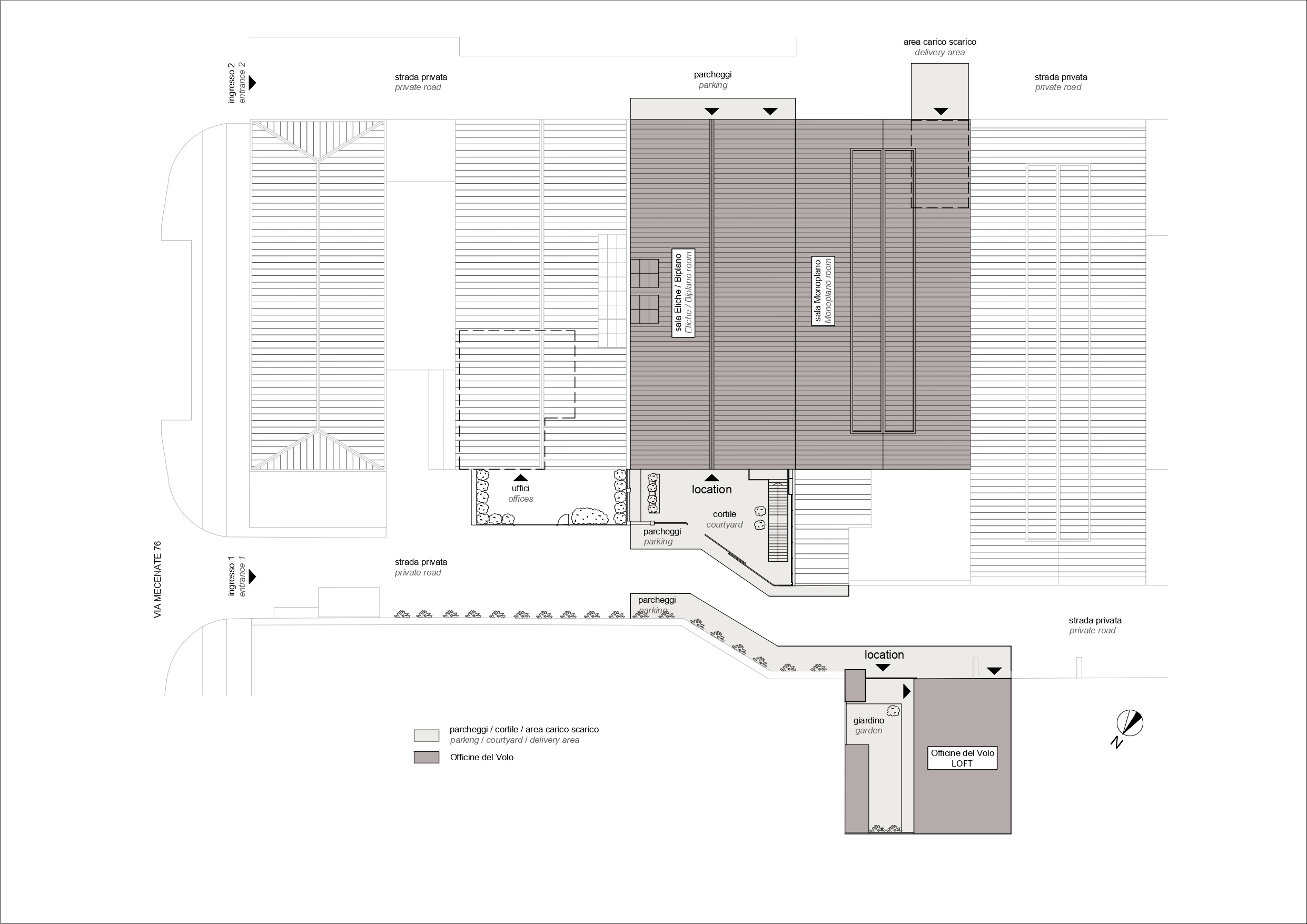
AREA ESTERNA

Parcheggi

Nella strada privata, lato cortile, sono disponibili circa n. 8 posti auto, disposti su entrambi i lati

Area di carico e scarico

  • La prima è situata davanti alla sala Eliche, nel cortile, per una capienza di circa n. 3 furgoni
  • La seconda è situata davanti al montacarichi per una capienza di circa n. 2 furgoni

Illuminazione

  • La facciata e il cortile sono illuminati con appositi fari

Impianto elettrico

  • N. 2 prese industriali (2P+T), 16A, 3kW cad.

Acqua

  • N. 1 punto acqua

Cortile

  • Mq 150, cancello d’ingresso larghezza m 4,95

SALA DI SERVIZIO BIMOTORE (area CARICO SCARICO)

DIMENSIONI

Superficie: mq 119

 

DOTAZIONI

Illuminazione

  • Corpi illuminanti fluorescenti aventi emissione diretta

Impianto elettrico

  • N. 2 prese 32A (3P+N+T), 15Kw cad.
  • N. 1 presa 63A (3P+N+T), 36Kw

Accessi

  • Montacarichi/ascensore da atrio piano terra: portata Kg 1000 (dimensioni: larghezza m 0,99 – altezza m 1,98)
  • Portone atrio (passaggio): larghezza m 3,35 – altezza m 3,85
  • Scala da atrio piano terra a disimpegno primo piano: larghezza m 1,20
  • N. 1 ingresso: larghezza m 0,95 – altezza m 2,38
  • N. 1 ingresso: larghezza m 1,23 – altezza m 2,38

Servizi toilette

  • N. 1 blocco servizi toilette (uomo/donna)

Acqua

  • N. 1 punto acqua con lavello

Aree comuni

  • Camerino attrezzato